Proyecto de interiorismo y decoración

Anteproyecto de reforma de vivienda actualmente destinada al alquiler.

Se trata de un magnífico inmueble, que se encuentra en buen estado de conservación. La ubicación y dimensiones lo convierten en un referente en la zona, pero el estilo y materiales empleados propio de los 70 le restan valor y atractivo.

Nos centramos en la reforma interior de la vivienda, en la zona exterior cambiaríamos el color de la fachada optando por color topo o beige amarronados, evitando el tono salmón que actualmente tiene.


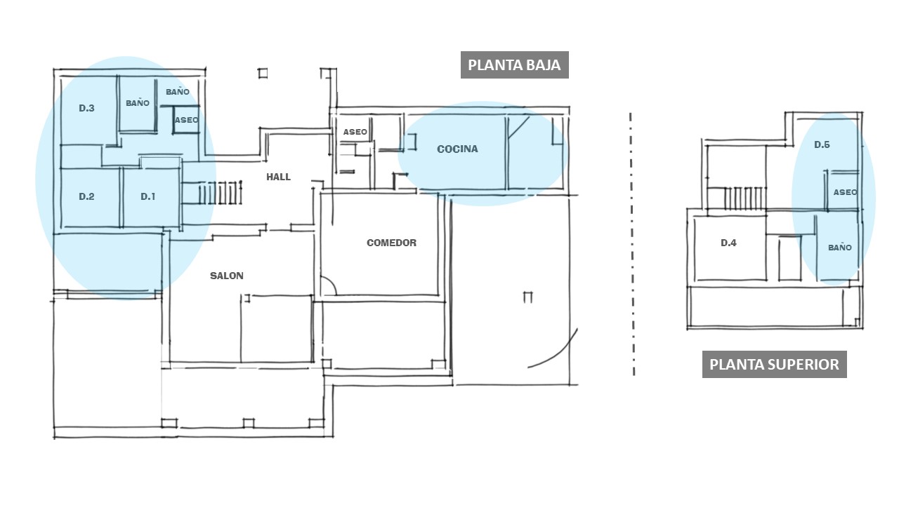
DISTRIBUCIÓN ACTUAL

*Las zonas sombreadas en azul, son las que vamos a reformar estructuralmente

OBJETIVOS

LUZ

Uno de los principales objetivos es dotar a la vivienda de luz.
El exceso de madera en puertas y vigas además de los revestimientos y suelos hacen que la vivienda carezca de luminosidad.

SOFISTIFICACION

El estilo de decoración desfasado y los revestimientos, así como los sanitarios de los baños restan valor al inmueble. Con la reforma y acondicionamiento pretendemos que pase a ser una vivienda de lujo.

AMPLITUD

Se pretende dotar de amplitud a la vivienda eliminando puertas y abriendo espacios en ellas, también se opta por la eliminación de muros separadores en cocina, salón y comedor. Mediante estas actuaciones se conseguirá un concepto de espacio abierto muy en línea con las viviendas de lujo de la zona.

ESENCIA

Esencia mediterránea, pero actual y atemporal.

AÑADIR VALOR

Consideramos que la inversión que se realice en el acondicionamiento del inmueble supondrá un incremento en su valor aproximadamente de la inversión realizada multiplicada por 5 debido a la excelente ubicación del inmueble, sus dimensiones y arquitectura.

PLANTA PRINCIPAL

PLANTA SUPERIOR

ESTILO

  • Seguimos la referencia de viviendas consideradas «TOP» de la zona.
  • Buscamos la esencia mediterránea, la luz y la forma de vida del enclave de la villa.
  • Materiales naturales, colores neutros y texturas autóctonas
  • Pero al mismo tiempo queremos plasmar que la vivienda es moderna, «recién reformada» y actual. 
  • Para ello la cocina es contemporánea, así como los sanitarios actuales y parte del mobiliario del salón.
  • El resultado es una » Villa TOP «, con un estilo y decoración atemporal.

INTERIORISMO

Pavimentos

Optamos por un pavimento tipo cemento, buscamos integrar el pavimento nuevo con el mármol que mantenemos en zona de recibidor, comedor y salón. Los tonos grises y la ausencia de brillo del nuevo pavimento se integra a la perfección con el mármol de tonos rosáceos.

Madera

La madera predomina en toda la vivienda, aunque el estado de conservación es óptimo , el color y el brillo del barniz elegido suponen un contratiempo en el estilo y la sensación que vamos buscando.
Optamos por tratar con chorro de arena toda la carpintería de madera. Y tratarlo con barniz mate e incoloro.
El resultado será un aspecto de esencia natural, pero muy sofisticado.

Pintura

Buscamos esencia mediterránea, luz y armonía.
En el interior pintura blanca mate.
En el exterior optamos por un tono beige topo eliminando el efecto rosáceo. El nuevo tono integrará con los toques en piedra y madera que forman parte de la arquitectura de la vivienda.

Electricidad

Para dejar totalmente actualizada la vivienda será necesario sustituir los interruptores enchufes. En el caso de la cocina y baño optamos por focos led. Las habitaciones incorporan ventiladores de diseño ultrasilencioso con iluminación led.

Mobiliario

Todo el mobiliario reflejado en el proyecto se puede suministrar, ofrecemos el mejor precio garantizado.
Mobiliario italiano, de importación, de fabricación natural, acorde con las últimas tendencias en decoración.

ESPACIOS

SALÓN

Además de dotar a la vivienda de una sensación cálida  y mediterránea  buscamos la sofisticación y el lujo, lo que hará que la inversión realizada se materialice en un incremento importante en el valor del inmueble.

Para ello además de la cocina incorporamos en el salón elementos como la chimenea horizontal, piezas de mobiliario de diseño, papel pintado, en el caso de la rinconera mantenemos el concepto pero eliminando el murete y ampliando el fondo de los asientos, que al igual que los respaldos serán envolventes y muy cómodos.

COMEDOR

Un gran espacio de comedor que integramos con la cocina y el salón.

Optamos por muebles italianos de esencia mediterránea con estructura metálica.

En el centro una imponente mesa redonda con sillas en rattán y una gran alfombra de yute de 3 metros de diámetro.

COCINA

Para dotar a la vivienda de un estilo actual, contemporáneo y atemporal optamos por un estilo de cocina de líneas rectas, puro y blanco.

Simplicidad contrarrestada por las grandes dimensiones que nos ofrece el espacio.

El gran peso de los elemento en madera de la vivienda se compensan con el estilo de la cocina.

RECIBIDOR

La búsqueda de la luz y el concepto de espacio abierto en toda la vivienda supone eliminar la puerta de madera corredera y al igual que en toda la vivienda pintar en blanco las paredes.

En el caso de la escalera optamos por un estilo ibicenco, barandilla de obra y peldaños del pavimento que incorporamos en habitaciones, cocina, planta superior y desnivel de la rinconera.

HABITACIONES

La incorporación de parte de porche nos permite reestructurar la parte derecha de la vivienda y dotarla de un dormitorio adicional, además de cumplir uno de los requisitos de nuestro cliente que era convertir todos los dormitorios en suite , incorporando un baño independiente en cada uno.

BAÑOS

Los baños buscan simplicidad y amplitud, incorporando diseños actuales en sanitarios suspendidos.

Los revestimientos los reservamos para la zona de ducha optando por el mismo material que el pavimento. 

Mobiliario sencillo suspendido.

PLANTA SUPERIOR

En la parte superior de la vivienda, planteamos un dormitorio con baño integrado . 

A nivel estructural solo incorporamos un tabique .

El pavimento y el revestimiento de los baños se sustituye completamente como en el caso de la zona de los dormitorios inferiores.

En el caso del vestidor se elimina la puerta.

 

ANTES Y DESPUÉS

VISITA VIRTUAL

CHAT
CHAT